2-к квартира, 74 м?, 1/16 эт., продажа квартир Воронеж, N 71801700

Реклама
Квартиры Воронеж, Более месяца назад

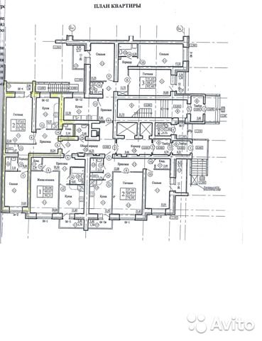
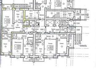
Продам новую квартиру в кирпичном доме.Отличная планировка с большой кухней. Своя котельная в жилом комплексе, счетчики на свет и воду, биметаллические батареи, пластиковые окна, качественная штукатурка и стяжка. Толщина стен 65 см это как следствие классная Шумоизоляция!
Район с развитой инфраструктурой,школы детские сады,Поликлиника и магазины.
Дом расположен в зеленой зоне рядом с парком Динамо.
Торг!
Название новостройки: ЖК «Зеленая Долина»
Отделка: Черновая
Вид объекта: Новостройки
Корпус: Позиция 5
Тип дома: Кирпичный
BuyReklama.ru

Сделка:Продам
Кол-во комнат::2-x комн.
Общая S, м2:74 /
Кухни S, м2:12.2 м2
Этаж:1 /
Этажей в доме:16
Цена:3090000,00